
DiaHavu
DiaHavu (Metsämiehenkatu 2 M) on syksyllä 2020 valmistunut 5-kerroksinen, hissillä varustettu asuinkerrostalo, jossa on 50 esteetöntä vuokra-asuntoa. Talossa on automaattinen palohälytin- ja sprinklerijärjestelmä, turvaliedet sekä laajakaistamahdollisuus. Kaikissa asunnoissa on lasitettu parveke.
Talossa on viihtyisä yhteistila ja kesäterassi asukkaille. Talopesula ja kuivaustilat sekä huoneistokohtaiset varastotilat sijaitsevat kellarikerroksessa. Lisäksi talossa on yhteinen varastotila ulkoiluvälineille ja liikkumisen apuvälineille ensimmäisessä kerroksessa.
| Palvelu | Hinta |
|---|---|
| Asumiseen kuuluva palvelumaksu sisältää: - sairaanhoitajan vastaanotto kerran viikossa - turvaranneke - järjestettävä virkistystoiminta - DiakonAsumisen yksikönjohtajan ja asumisohjaajan palvelut | 125,50 €/kk puoliso 38,75 € |
| Saunavuoro kerran viikossa | 10 €/kk |
| Turvapuhelinkäynnit | 29 € klo 7-21 ja 55 € klo 21-7 |
Vedenkulutus laskutetaan käytön mukaan jälkikäteen. Asukas tekee oman sähkösopimuksen.
Vuokravakuus on 1 kk vuokraa vastaava summa.
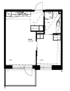
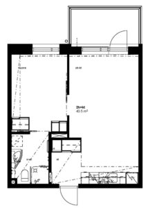
Asuntojen koot ja vuokrat
| Asunto | Koko | Vuokra |
|---|---|---|
| 2 h + keittiöseinä | 41 m² | 776,13 €/kk |
| 2 h + keittiöseinä | 41,5 m² | 785,60 €/kk |
| 2 h + keittiöseinä | 43,5 m² | 823,46 €/kk |
| 3 h + keittiö | 58,5 m² | 1107,41 €/kk |
Kysy lisää ja hae asumaan,
Sari Haapalainen 044 705 2101 tai
sari.haapalainen@diakon.fi
Pohjapiirrokset







Kuvia DiaHavusta
Yhteystiedot
DiaHavu
Metsämiehenkatu 2 M, 28500 Pori
DiakonAsumisen yksikönjohtaja
Sari Haapalainen
044 705 2101
sari.haapalainen@diakon.fi
Asumisohjaaja
044 705 2174






